LOCAL COMMERCIAL A LOUER A SALVIZINET (LOIRE) - L'AUBERGE DE LA VALETTE
AUBERGE DE LA VALETTE
1 Chemin de la Chapelle, Salvizinet (Loire, 42)
A louer : restaurant - auberge à fort potentiel (300 m²), entièrement rénové, à proximité de Feurs - loyer 1 750€HT (incl. licence IV)

©tim.futurorg
LE TERRITOIRE
Salvizinet est un petit village de 625 habitants situé dans le département de la Loire. Distant de 5 km (10 min) de Feurs (8 300 habitants), il appartient à la Communauté de Communes de Forez-Est (42 communes, 65 000 habitants).
L’intercommunalité est située au cœur du département de la Loire et est reconnue comme un territoire à caractère mixte urbain-rural. Au cœur de ce territoire, Salvizinet se situe à 45 mn de Saint-Etienne et 1h15 de Clermont-Ferrand et Lyon. Sa position stratégique offre à ses habitants une qualité de vie agréable.
Entourée par les communes de Civens, Salt-en-Donzy et Cottance, Salvizinet est située à 30 km de Tarare (10 500 habitants).
L’AUBERGE

Dernier commerce de la commune encore en activité jusqu’en mars 2025 (avec un autre lieu de restauration fermé au même moment), l’auberge de la Valette se situe à 2 km du centre-bourg du village, en pleine nature.
Véritable institution, l’auberge existe depuis 150 ans. Elle dispose d’une histoire ancrée sur son territoire, d’une renommée et d’une clientèle fidèle particulièrement attachée à ce lieu, aux figures locales l’ayant exploité et à son identité d’auberge.
Bien identifiée par des panneaux signalétiques, l’auberge est excentrée du centre-bourg mais facilement accessible et à proximité immédiate de points d’intérêt : chemin de randonnée du monorail (randonnée de 25 km qui passe juste devant l’auberge), ruines de Donzy (2.3 km), chapelle romane de la Valette.
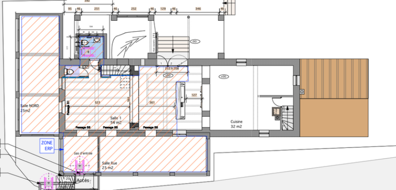
LE BÂTIMENT / LE LIEU
Sur plus de 3000 m² de terrain, l’auberge dispose d’une surface de 300m² au total avec 140 m² de restaurant (capacité de 70 couverts environ à l’intérieur), un étage de d’environ 50 m² (qui servait de bureaux / vestiaires), un sous-sol de 110m² et 3 000 m² de terrain (terrasse semi-couverte et jardins en bord de rivière et autres parcelles) offrant du potentiel.


©tim.futur org
Le bâtiment se compose de la manière suivante :
- 3 salles de restauration, dont deux grandes salles permettant aux grands groupes de bénéficier d'intimité dans le restaurant.
- Une grande cuisine (32 m²) ouverte sur le bar et sur l’une des salles de restauration
- Une réserve
- A l’étage, un dégagement desservant deux pièces ainsi qu’un WC et une salle de douche.
- Deux greniers, deux garages et deux caves.

L’auberge a été rénovée avec soin et goût et mise aux normes en 2023 ; les travaux ont permis de retrouver l'essence de ce bâtiment en pisé et pierres en lui apportant une touche de modernité et de confort.


Salle Nord

Salle 1 - ©tim.futur org

Bar ouvert sur salle 1 et cuisine - ©tim.futur org

Salle rue
PRÉSENTATION DE VILLAGES VIVANTS - PROPRIÉTAIRE DES MURS
Les murs de l’auberge de la Valette ont été acquis par Villages Vivants en novembre 2022.
Villages Vivants est une coopérative immobilière rurale et solidaire qui rassemble des citoyens, entreprises et collectivités qui s'engagent avec leur épargne pour acheter, rénover et louer des locaux, de préférence à des entreprises de l'économie sociale et solidaire dans les territoires ruraux.
Nous privilégions l’installation de projets qui apportent une réponse à des besoins non ou partiellement couverts sur les territoires, en favorisant des lieux de rencontre et de vie, qui soient ouverts au plus grand nombre, à la population et aux acteurs locaux.
En tant que propriétaire, Villages Vivants entend bâtir une relation de coopération solide et durable avec ses locataires pour créer des biens communs au service de la dynamisation des territoires ruraux. Transparence, écoute, respect et confiance sont les principes fondateurs de cette relation qui veut s’inscrire bien au-delà d’un simple lien contractuel de bailleur à locataire.
Les besoins du territoire - offre attendue / critères
- Population et clientèle exigeante et fidèle ayant eu l’habitude de fréquenter l’auberge lorsqu’elle proposait une cuisine traditionnelle d’auberge, copieuse avec un bon rapport qualité prix.
- L’emplacement excentré renforce la nécessité de ce lieu d’avoir une offre spécifique et une identité lisible pour inciter la clientèle à s’y déplacer.
- Opportunité de développer une offre pour les groupes avec de grandes salles et des extérieurs propices à la privatisation.
- En plus des habitués et repas de familles, une clientèle de week-end est à capter avec la présence de sites attractifs à proximité immédiate : monorail, randonneurs/promeneurs, ruines du Donzy, GR, etc.
- En complément de l’activité de restauration, le lieu offre un potentiel de diversification : bar (licence IV), événementiels, privatisations, etc.
- Les candidats à la reprise devront adhérer aux valeurs de Villages Vivants dans l’Esprit de sa charte.
MODALITÉS DE REPRISE / CALENDRIER
La licence IV a été reprise par Villages Vivants et reste donc rattachée à l’auberge de la Valette.
Le/la/les futur.e.s repreneur.ses devront prévoir d’investir afin de reconstituer l’ensemble du matériel (matériel de cuisine, chambre froide, mobilier…) et le stock nécessaire à l’activité.
La location de l’auberge prendra la forme d’un bail commercial avec Villages Vivants dans les conditions suivantes :
- Loyer mensuel plein (y compris location de la licence IV) estimé à environ 1 750 € HT
- A prévoir en plus, refacturation de la taxe foncière : 577 € en 2024.
Des conditions financières favorables et adaptées à la reprise de l’activité pourront être envisagées avec les candidat.es à savoir :
- La mise en place d’un loyer progressif (période et progressivité à définir ensemble).
- La mise en place d’une saisonnalité de loyer en fonction de la nature des activités et de leurs dépendances aux différentes saisons.
La possibilité de revendre la licence IV au locataire à l’issue de la première période triennale (bail 3/6/9) pourra être envisagée .
MODALITÉS DE CANDIDATURE
Pour tout renseignement complémentaire et dépôt de candidatures merci de vous adresser à f.lianzon@villagesvivants.com et j.woehrel@villagesvivants.com.
Contenu des candidatures :
- dossier de présentation du projet (activités proposées, offre, projet de carte, profil de porteur.ses du projet, budget prévisionnel et plan de financement…).
- calendrier prévisionnel de création d’entreprise et de réouverture.
Des visites de l’auberge seront possibles et programmées au cours des discussions avec les potentiel.les candidat.es.
Un entretien et un échange des candidat.es avec la Mairie de Salvizinet pour présenter le projet seraient appréciés.